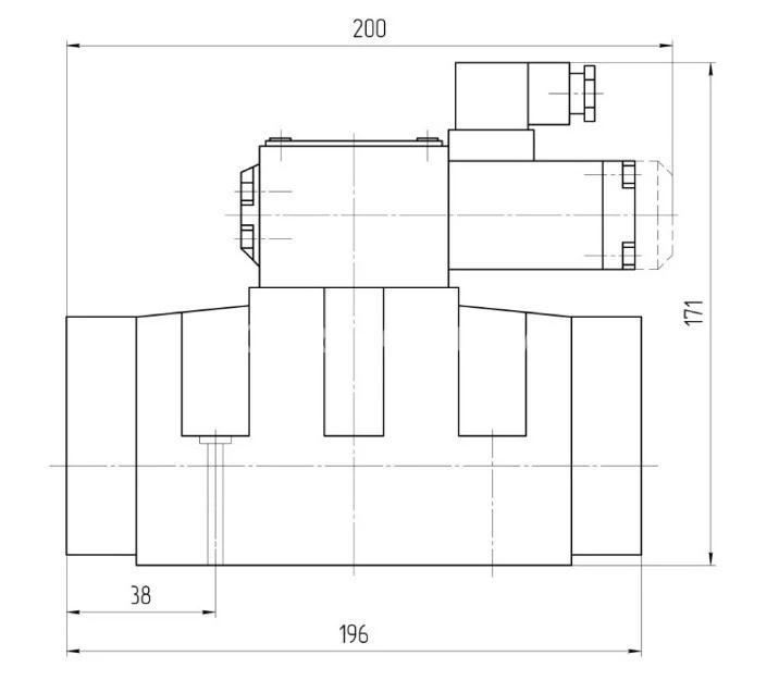
Гидрораспределитель ВЕХ16.Х 574А
✓ Сертифицированное оборудование
✓ Гарантия надежной эксплуатации
✓ Контроль качества на каждом этапе
✓ Современное оборудование
✓ Быстрая отгрузка
Основные технические данные
Условный проход : 16мм
Рабочее давление: 31,5МПа
Пропускная способность: 160-200л.
Напряжение: 24в., 110в., 220в.
Тип монтажа: модульный (стыковой, плиточный)
Масса : не более 16,5 кг
Схема распределения потока рабочей жидкости:

![]() |
|||||
|---|---|---|---|---|---|
Гидрораспределители типа ВЕХ16,являются золотниковыми четырехлинейными распределителями с электрогидравлическим управлением, Ду 16 мм.
Предназначены для изменения направления или пуска и остановки потока рабочей жидкости в гидравлических системах станков, прессов и других стационарных машин с давлением до 32 МПа.
В качестве рабочей жидкости рекомендуются масла: индустриальное ИГП-30;турбинное Тп-22, Тп-30, ВНИИНП-403 и другие масла с аналогичными свойствами с классом чистоты не грубее 13 по ГОСТ17216-71 с кинематической вязкостью от 10 до 400 сСт с номинальной тонкостью фильтрации не более 0,025мм.
При наладочных работах или в случае аварии (при обесточенных магнитах) переключение гидрораспределителя может осуществляться нажатием кнопки ручного управления электромагнита и при условии подачи потока управления.
Общие правила по технике безопасности при работе с гидрораспределителями типа ВЕХ16 согласно ГОСТ 31177-2003
Базовой деталью гидрораспределителя является корпус, в котором выполнены основные каналы:
Р - отверстие для входа рабочей жидкости под давлением;
А и В - отверстия для присоединения к другим гидроустройствам;
Т - отверстие для выхода рабочей жидкости в бак;
Х - подвод потока управления;
Y - слив потока управления;
L - дренаж (слив утечек трехпозиционного гидрораспределителя с гидравлическим возвратом).
В гидрораспределителе с электрогидравлическим управлением, золотник 2 перемещается из исходного положения в крайнее давлением потока управления.
Установка золотника в исходное положение осуществляется:
- пружиной 3 для гидрораспределителя с пружинным возвратом;
- давление управления для гидрораспределителя с гидравлическим возвратом.
Гидрораспределители изготавливаются с потоком управления, не зависимым от основного потока. Для перестройки на управление от основного потока, нужно снять крышку 4, извлечь палец 6, перевернуть его на 1800 и установить его на место. При этом отверстие подвода управления «Х», необходимо перекрыть. Слив потока управления «Х», не может быть объединен с помощью «Т», в следующих случаях:
- давление в полости «Т» превышает 6 Мпа;
-для трехпозиционного гидрораспределителя с гидравлическим возвратом золотника.
В качестве вспомогательного гидрораспределителя поз.5, используется распределитель типа ВЕ6.34… или 1РЕ6.34… для исполнения с пружинным возвратом золотника и ВЕ6.24… или 1РЕ6.24… для исполнения с гидравлическим возвратом золотника.
Гидрораспределитель изготавливается со следующими вспомогательными узлами и устройствами:
1. Дроссельная плита, предназначена для регулирования времени срабатывания гидрораспределителя. При повороте регулировочного винта 1 по часовой стрелке время срабатывания увеличивается, при повороте против часовой стрелки - уменьшается. Регулирование может осуществляться как на подводе, так и на отводе потока управления. Для перестройки способа регулирования, необходимо снять дроссельную плиту, повернуть ее вокруг продольной оси на 1800 и установить на место.
2. Устройство для регулирования величины хода золотника. Перемещение винта 1 за один оборот - 1,5 мм. Регулирование хода золотника должно производиться при отключенном энергопитании.
3. Гидроклапан обратный, который применяется в исполнении гидрораспределителя с управлением от основного потока для схем 14; 54; 64; 574, для создания минимального давления управления, причем для схемы 574 только в том случае, когда поток рабочей жидкости не превышает 120л/мин. Гидроклапан обратный устанавливается в отверстие «Р» основного распределителя.
4. Диафрагма устанавливается в подводное отверстие вспомогательного гидрораспределителя для ограничения потока управления. Этим достигается определенное увеличение времени срабатывания распределителя.
5. Гидроклапан соотношения давлений используется в исполнении гидрораспределителя с управлением от основного потока с давлением, превышающим 25 МПа, уменьшает давление управления в соотношении 1:0,66.
6. Для удобства монтажа, гидрораспределитель может быть поставлен с присоединительной плитой.
